Zur Navigation wechseln Zum Inhalt wechseln Zum Footer wechseln

Ertragsliegenschaft mit 12 % Rendite

ImmoNr.
SO_20029
Objektart
Zins und Renditeobjekte
Objekttyp
Wohn- und Geschäftshaus
Vermarktungsart
Kauf
PLZ
4360
Ort
Grein
Land
Österreich
Grundstücksgröße
1.535 m²
Kaufpreis
485.000,00 €

Zur Immobilie

In zentraler Lage von Grein an der Donau befindet sich die Liegenschaft Hauptstraße 27, das ehemalige SPAR-Gebäude, das nun zu einem attraktiven Renditeobjekt mit vielfältigen Nutzungsmöglichkeiten entwickelt werden soll.

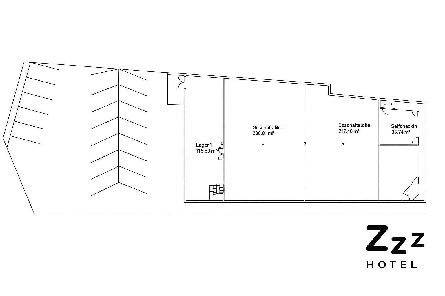
Die bestehende Verkaufsfläche im Erdgeschoß wird neu strukturiert: Der vordere Bereich mit großzügigen Auslagenflächen eignet sich ideal für ein Geschäftslokal. Erste Interessenten für diese Fläche sind bereits vorhanden. Der hintere Teil des Erdgeschoßes soll als Lager- bzw. Nebenfläche adaptiert und separat vermietet werden – optimal für gewerbliche Nutzung oder regionale Betriebe mit Lagerbedarf.

In der Oberetage ist der Umbau zu modernen Gästezimmern mit 24/7-Self-Check-in-System vorgesehen. Dieses Konzept trifft den Zeitgeist und profitiert von der hohen touristischen Frequenz der Region.

Die Tourismusregion Donauraum verzeichnete 2023 beeindruckende 1,8 Millionen Ankünfte (+20 %) und rund 3,5 Millionen Nächtigungen (+15 %) – und das ohne Wien. Besonders der Donauradweg, einer der beliebtesten Radfernwege Europas, sorgt für stetig wachsenden Besucherzustrom.

Mit ihrer zentralen Lage, flexiblen Nutzungsmöglichkeiten und touristischen Nachfrage bietet die Liegenschaft in Grein ein zukunftsträchtiges Investment mit hohem Renditepotenzial.

Nutzungsart
Gewerbe

Ihr Ansprechpartner

Rudolf Brandstetter

Herr Rudolf Brandstetter

Wohsonst

Tel.:
+43 676 90 22 341
E-Mail:
rb@wohsonst.at

Schulstraße 14
3300 Amstetten

Deine Anfrage zu der Immobilie „Ertragsliegenschaft mit 12 % Rendite“ (SO_20029)

* Pflichtfelder